Sabe aquela história de “obra de arte”? Em se tratando desta casa, debruçada sobre o mar de Florianópolis, não é apenas força de expressão. Vencedora do Golden Trezzini Awards, considerado o Oscar da arquitetura residencial, a Casa Ponte foi eleita o melhor projeto do mundo em 2024.
Escolhida por um júri formado pelos mais renomados arquitetos do planeta, como o espanhol Santiago Calatrava, o inglês Norman Foster, o suíço Mario Botta e o italiano Massimiliano Fuksas, seu projeto hoje integra o acervo permanente do Museu de São Petersburgo, na Rússia.
Inspirada pela paisagem do entorno e pela Ponte Hercílio Luz, cartão-postal de Florianópolis, a Casa Ponte ganhou espaço em publicações de todas as latitudes: da inglesa Wallpaper, bíblia do luxo mundial, à série da Prime Video Architects Brazil, passando por dezenas de publicações em países como Austrália, China, Estados Unidos, Suécia, República Tcheca, Irã e Nova Zelândia.
A Casa Ponte já foi exibida em mais de 50 publicações ao redor do mundo.


Casa Ponte, in Floripa, connects the island of Santa Catarina to the mainland
Casa Ponte, in Floripa, connects the island of Santa Catarina to the mainland in two ways - by its position and by its constructive elements. Overlooking the sea of Cacupé, the house is facing the sunset, prioritizing the view of the continental sea and the mountains of Serra Catarinense. To soften the effects of the #sun, huge steel eaves covered with galvanized railings were designed, the same as the Hercílio Luz Bridge, the main postcard of Florianópolis” say the architects.
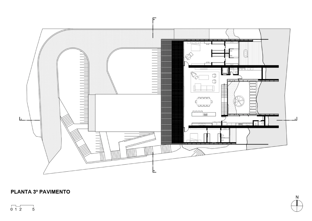
Área total
4.700 m²
Área privativa
1.700 m²
Área construída
1.002 m²
Casa Ponte | Todos os direitos reservados.
Para fornecer as melhores experiências, usamos tecnologias como cookies para armazenar e/ou acessar informações do dispositivo. O consentimento para essas tecnologias nos permitirá processar dados como comportamento de navegação ou IDs exclusivos neste site. Não consentir ou retirar o consentimento pode afetar negativamente certos recursos e funções.